首页 技术专题 人力资源 给我们留言
热点产品搜索:
首页
|
企业概况
|
新闻中心
|
产品展示
|
技术专题
|
企业业绩
|
服务中心
|
营销市场
|
资料下载
|
联系我们
▲ 当前位置:首页 > 产品目录 > 自力式调节阀> ZDY自力式压力调节阀
产品目录 技术专题 服务中心 资料下载
产品目录
大禹总部位于上海浦东新区大麦湾工业区, 生产基地位于南通东安科技工业园,是一家集研发、制造、营销为一体的科技型企业。
公司主导产品有电动/气动调节阀、自力式调节阀、耐腐蚀调节阀、特殊类调节阀、O型、V型球阀、补偿式半球阀、蝶阀、放料阀等38个系列400多个规格的产品,产品在石油、化工、冶金、电力、造纸、环保、轻工等行业中广泛应用。
ZDY自力式压力调节阀

下一条:ZQDY-压力调节阀 上一条:自力式压力套筒调节阀

产品概述

ZZYP型自力式压力调节阀是不需要任何外加能源,能在无法提供能源哦气源的场所工作,它集测量、执行和控制功能于一体,利用被调介质自身压力的变化而实现压力自动调节的阀门产品。

该阀采用快开流量特性,在运行中可随意调整压力设定值,具有动作灵敏、密封性能好大的有点。适用于各种气体、液体及蒸汽介质进行减压、稳压(用于阀后调节)或泄压、持压(用于阀前调节)的自动控制。附设冷凝器可在≤350°C温度下使用。

产品特点

ZZYP型自力式压力调节阀最大特点是能在无电、无气的场所工作,同时又节约了能源,压力设定值在运行中可随意调整。采用快开流量特征,动作灵敏、密封性能好,因而它广泛应用于石油、化工、电力、冶金、食品、轻纺、机械制造与居民建筑楼群等各种工业设备中。

结构与作用原理

调压阀主要有检测执行机构、调压阀、冷凝器与阀后接管等腰三角形四部分组成,其结构(见图1、图2)。
图1:用于控制阀后压力的调压阀,阀的作用方式为压闭型。其原理如下:介质由箭头方向流入阀体、经阀芯、阀座节流后输出。另一路经冷凝器(介质为蒸汽时使用)冷却后,被引入执行机构作用于膜片上,使阀芯随之发生相应的位移,达到减压、稳压之目的。如阀后压力增加,作用于膜片上的力增加,压缩弹簧,带动阀芯,使阀门开启度减小,直至阀后压力下降到设定值为止。同理,如阀后压力降低,作用在膜片上的力减小,由于弹簧的反作用力,带动阀芯,使阀门开启度增大,直到阀后压力上升到设定值为止。

图2:用于控制阀前压力的调压阀,阀的作用方式为压开型。其原理如下:介质由箭头方向流入阀体,另一路经冷凝器(介质为蒸汽时使用)冷却后,被引入执行机构作用于膜片上,使阀芯随之发生相应的位移,达到泄压、稳压之目的。如阀前压力增加,作用于膜片上的力增加,压缩弹簧,带动调芯,使阀门开启度增大,直到阀前压力下降到设定值为止。同理,如阀门开启度减小,直到阀前压力上升到设定值为止。

1、进液接头2、排气塞3、检测执行机构4、进液管5、压盖螺钉6、冷凝器7、弹簧8、阀杆9、阀芯10、波纹管11、压力调节盘12、注液口螺钉13、取压管14、阀后接管15、阀座16、阀体

图1ZZYP-16B自力式压力调节阀

1、进液接头2、排气管3、检测行机构4、进液管5、压盖螺杆6、冷凝器7、弹簧8、阀杆9、阀芯10、波纹管11、压力调节盘12、注液口螺钉13、取压管14、阀前接管15、阀座16、阀体

图2ZZYP-16K型自力式压力调节阀

主要技术数据

1、主要技术参数和性能指标表2

公称通径DN(mm)

20

25

32

40

50

65

80

100

125

150

200

250

300

额定流量系数(KV)

7

11

20

30

48

75

120

190

300

480

760

1100

1750

额定行程(mm)

8

10

14

20

25

40

50

60

70

公称压力PN(MPa)

1.6、4.0、6.4

压力调节范围(Kpa)

15~50、 40~80、 60~100、 80~140、  120~180、 160~220、
200~260、 240~300、 280~350、 330~400、 380~450、 430~500、
480~560、 540~620、 600~700、 680~800、 780~900、 880~1000、
600~1500、 1000~2500

流量特性

快开

调节精度(%)

±5

使用温度(℃)

≤350

允许
泄漏量

硬密封(l/h)

单座:≤10-4?阀额定容量(Ⅳ级);双座、套筒≤5×10-3阀额定容量(Ⅱ级)

软密封(ml/h)

0.15

0.30

0.45

0.60

0.90

1.7

4.0

6.75

11.10

11.60

减压比

最大

10

最小

1.25

2、压力调节范围确定

压力调节范围分段,见主要参数及性能指标表,控制压力应尽量选取在调节范围的中间值附近(详见表2)。

3、阀后压力调节阀,其阀前压力与阀后压力的关系

自力式调节阀本身是一个调节系统,阀本身又有一定的压降要求,对阀后压力调节阀(B型),为保证阀后压力在一定范围内,其阀前压力必须达到一定值,其要求可参见下表:

阀前压力
Kpa

30

50

100

150

200

250

300

350

400

450

500

550

600

阀后压力
KPa

15~
24

15~
40

15~
80

15~
120

20~
160

25~
200

30~
240

35~
280

40~
320

45~
360

50~
400

55~
440

60~
480


阀前压力
Kpa

650

700

750

800

850

900

950

1000

1250

1500

2000

2500

3000

阀后压力
KPa

65~
520

170~
560

75~
600

80~
640

85~
680

90~
720

95~
760

100~
800

125~
1000

150~
1200

200~
1600

250~
2000

300~
2400

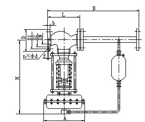
4、外形尺寸与重量

图3外形尺寸图

公称通径DN

20

25

32

40

50

65

80

100

125

150

200

250

300

法兰接管尺寸B

383

512

603

862

1023

1380

1800

2000

2200

法兰端面距L

150

160

180

200

230

290

310

350

400

480

600

730

850

压力调节范围KPa

15-140

H

475

520

540

710

780

840

880

915

940

1000

A

280

308

130-300

H

455

500

520

690

760

800

870

880

900

950

A

230

280-500

H

450

490

510

680

750

790

860

870

890

940

A

176

194

280

480-1000

H

445

480

670

740

780

850

860

880

930

A

176

194

280

600-1500

H

445

570

600

820

890

950

1000

1100

1200

A

85

96

1000-250

H

445

570

600

820

890

950

1000

1100

1200

A

85

96

重量Kg

26

37

42

72

90

114

130

144

180

200

250

导压管接头螺纹

M16×1.5

5、主要零件材料

零件名称

材料

阀体

ZG230-450、ZG1Cr18Ni9Ti、ZGCr18Ni12Mo2Ti

阀芯

1Cr18Ni9Ti、Cr18Ni12Mo2Ti

阀座

1Cr18Ni9Ti、Cr18Ni12Mo2Ti

阀杆

1Cr18Ni9Ti、Cr18Ni12Mo2Ti

橡胶膜片

丁晴、乙炳、氟、耐油橡胶

膜盖

A3、A4钢涂四氟乙烯

填料

聚四氟乙烯、柔性石墨

(1)阀结构形式:波纹管平衡型双阀芯平衡型
(2)执行机构:

图4

(3)阀体工作温度与允许压力:

图5

主要技术数据

1、主要技术参数和性能指标表2

公称通径DN(mm)

20

25

32

40

50

65

80

100

125

150

200

250

300

额定流量系数(KV)

7

11

20

30

48

75

120

190

300

480

760

1100

1750

额定行程(mm)

8

10

14

20

25

40

50

60

70

公称压力PN(MPa)

1.6、4.0、6.4

压力调节范围(Kpa)

15~50、 40~80、 60~100、 80~140、  120~180、 160~220、
200~260、 240~300、 280~350、 330~400、 380~450、 430~500、
480~560、 540~620、 600~700、 680~800、 780~900、 880~1000、
600~1500、 1000~2500

流量特性

快开

调节精度(%)

±5

使用温度(℃)

≤350

允许
泄漏量

硬密封(l/h)

单座:≤10-4?阀额定容量(Ⅳ级);双座、套筒≤5×10-3阀额定容量(Ⅱ级)

软密封(ml/h)

0.15

0.30

0.45

0.60

0.90

1.7

4.0

6.75

11.10

11.60

减压比

最大

10

最小

1.25

2、压力调节范围确定

压力调节范围分段,见主要参数及性能指标表,控制压力应尽量选取在调节范围的中间值附近(详见表2)。

3、阀后压力调节阀,其阀前压力与阀后压力的关系

自力式调节阀本身是一个调节系统,阀本身又有一定的压降要求,对阀后压力调节阀(B型),为保证阀后压力在一定范围内,其阀前压力必须达到一定值,其要求可参见下表:

阀前压力
Kpa

30

50

100

150

200

250

300

350

400

450

500

550

600

阀后压力
KPa

15~
24

15~
40

15~
80

15~
120

20~
160

25~
200

30~
240

35~
280

40~
320

45~
360

50~
400

55~
440

60~
480


阀前压力
Kpa

650

700

750

800

850

900

950

1000

1250

1500

2000

2500

3000

阀后压力
KPa

65~
520

170~
560

75~
600

80~
640

85~
680

90~
720

95~
760

100~
800

125~
1000

150~
1200

200~
1600

250~
2000

300~
2400

4、外形尺寸与重量

图3外形尺寸图

公称通径DN

20

25

32

40

50

65

80

100

125

150

200

250

300

法兰接管尺寸B

383

512

603

862

1023

1380

1800

2000

2200

法兰端面距L

150

160

180

200

230

290

310

350

400

480

600

730

850

压力调节范围KPa

15-140

H

475

520

540

710

780

840

880

915

940

1000

A

280

308

130-300

H

455

500

520

690

760

800

870

880

900

950

A

230

280-500

H

450

490

510

680

750

790

860

870

890

940

A

176

194

280

480-1000

H

445

480

670

740

780

850

860

880

930

A

176

194

280

600-1500

H

445

570

600

820

890

950

1000

1100

1200

A

85

96

1000-250

H

445

570

600

820

890

950

1000

1100

1200

A

85

96

重量Kg

26

37

42

72

90

114

130

144

180

200

250

导压管接头螺纹

M16×1.5

5、主要零件材料

零件名称

材料

阀体

ZG230-450、ZG1Cr18Ni9Ti、ZGCr18Ni12Mo2Ti

阀芯

1Cr18Ni9Ti、Cr18Ni12Mo2Ti

阀座

1Cr18Ni9Ti、Cr18Ni12Mo2Ti

阀杆

1Cr18Ni9Ti、Cr18Ni12Mo2Ti

橡胶膜片

丁晴、乙炳、氟、耐油橡胶

膜盖

A3、A4钢涂四氟乙烯

填料

聚四氟乙烯、柔性石墨

(1)阀结构形式:波纹管平衡型双阀芯平衡型
(2)执行机构:

图4

(3)阀体工作温度与允许压力:

图5

 
公司概况   新闻资讯   产品中心   营销市场   服务中心   联系我们
                     
公司简介
董事长致辞
企业宗旨
组织机构
公司荣誉
厂区概况
  企业新闻
公司文艺角
行业动态
技术文章
  调节阀
蝶阀
电磁阀
球阀
放料阀
刀型闸阀
自力式压力调节阀
衬氟及塑料阀门
工艺阀门
执行机构
  营销市场
营销网络
  服务中心
服务承诺
  联系我们
留言中心
                     
Copyright (c) 2016 上海大禹自控阀门有限公司 沪ICP备15052615号 技术支持:控制阀网