首页 技术专题 人力资源 给我们留言
热点产品搜索:
首页
|
企业概况
|
新闻中心
|
产品展示
|
技术专题
|
企业业绩
|
服务中心
|
营销市场
|
资料下载
|
联系我们
▲ 当前位置:首页 > 产品目录 > 自力式调节阀> ZZC和ZZV自力式差(微)压调节阀
产品目录 技术专题 服务中心 资料下载
产品目录
大禹总部位于上海浦东新区大麦湾工业区, 生产基地位于南通东安科技工业园,是一家集研发、制造、营销为一体的科技型企业。
公司主导产品有电动/气动调节阀、自力式调节阀、耐腐蚀调节阀、特殊类调节阀、O型、V型球阀、补偿式半球阀、蝶阀、放料阀等38个系列400多个规格的产品,产品在石油、化工、冶金、电力、造纸、环保、轻工等行业中广泛应用。
ZZC和ZZV自力式差(微)压调节阀

下一条:ZZWP型自力式温度调节阀 上一条:ZQDY-压力调节阀

产品简介

产品名称:ZZC和ZZV自力式差(微)压调节阀
类型:调节阀
公称通径:DN20-DN100
公称压力:0.、1.0Mpa
温度范围:≤80℃
材料:铸铁、碳钢、不锈钢、铸不锈钢、铸钢等
关键词:ZZC自力式调节阀 ZZV自力式调节阀 自力式调节阀

产品概述

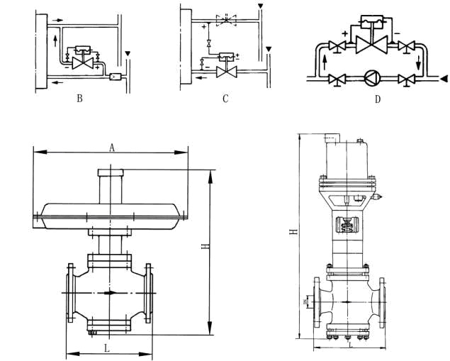
ZZC和ZZV自力式差(微)压调节阀是一种不需要外加能源的执行器产品。可用于公称压力PN01,PN10。差(微)压均可分段调节。从50mm.W.C至0.1MPa。其用途十分广泛,可用于工业燃烧炉系统,控制两种物料,如煤气、空气流量配比,以达理想燃烧。用于氢冷发电机组密封油系统,控制密封油与氢气间压力差,以确保可靠密封。当差压阀的低压端通大气即为微压阀(差压阀负压,端压,力为零)。

产品特点

·无需停止生产即可进行设定值的调整;
·无填料,阀杆上、下活动时不存在磨擦,上密封绝对可靠;
·执行机构敏感元件极为灵敏,极微小的压力变化会被感测出来;
·阀体为四通形式,因而K、B型可通用一种阀体。

主要的技术参数

公称通径 DN(mm) 20 25 32 40 50 65 80 100
额定流量 系数 Kv ZZCP/ZZVP 8 11 20 32 50 80 100 160
ZZCN
?
?
?
?
53 83
?
?
额定行程 (mm) 6 8 10 15 20
公称压力 PN(MPa) 0.10 1.0
差压调节范围 (kPa)
0.5 ~ 5.5 5 ~ 10 9 ~ 14 13 ~ 19
18 ~ 24 22 ~ 28 26 ~ 33 31 ~ 38
36 ~ 44 42 ~ 51 49 ~ 58 56 ~ 66
64 ~ 78 76 ~ 90 8 ~ 100
介质温度 ( ℃ ) ≤ 80
调节精度 ( % ) ≤ 10
允许泄漏 量 (l/h) ZZCP/ZZVP 10 -4 X 阀额定容量 ( Ⅳ 级 )
ZZCN 5X10 -3 X 阀额定容量 ( II 级 )

注:1.ZZCP/ZZVP公称压力为0.10MPa,ZZCN为1.0MPa
2.ZZCN差压调节范围为36~44…88~100kPa

外形尺寸与重量

单位:mm

DN 20 25 32 40 50 65 80 100
A 308 394 308 394 308 394 394 394
H ZZCP/ZZVP 376 465 365 445 445 490 490 510
ZZCN
?
?
?
?
536 536
?
?
L ZZCP/ZZVP 150 160 180 200 230 290 310 350
ZZCN
?
?
?
?
222 222
?
?
重量 G(Kg) 12 13 15 17 20 28 38 43
导压管螺纹接头 M16X1.5

连接标准

泄氮装置(自力式微压调节阀)

外形尺寸与重量

单位:mm

DN 20 25 32 40 50 65 80 100
A 308 394 308 394 308 394 394 394
H ZZCP/ZZVP 376 465 365 445 445 490 490 510
ZZCN
?
?
?
?
536 536
?
?
L ZZCP/ZZVP 150 160 180 200 230 290 310 350
ZZCN
?
?
?
?
222 222
?
?
重量 G(Kg) 12 13 15 17 20 28 38 43
导压管螺纹接头 M16X1.5

连接标准

泄氮装置(自力式微压调节阀)

主要的技术参数

公称通径 DN(mm) 20 25 32 40 50 65 80 100
额定流量 系数 Kv ZZCP/ZZVP 8 11 20 32 50 80 100 160
ZZCN
?
?
?
?
53 83
?
?
额定行程 (mm) 6 8 10 15 20
公称压力 PN(MPa) 0.10 1.0
差压调节范围 (kPa)
0.5 ~ 5.5 5 ~ 10 9 ~ 14 13 ~ 19
18 ~ 24 22 ~ 28 26 ~ 33 31 ~ 38
36 ~ 44 42 ~ 51 49 ~ 58 56 ~ 66
64 ~ 78 76 ~ 90 8 ~ 100
介质温度 ( ℃ ) ≤ 80
调节精度 ( % ) ≤ 10
允许泄漏 量 (l/h) ZZCP/ZZVP 10 -4 X 阀额定容量 ( Ⅳ 级 )
ZZCN 5X10 -3 X 阀额定容量 ( II 级 )

注:1.ZZCP/ZZVP公称压力为0.10MPa,ZZCN为1.0MPa
2.ZZCN差压调节范围为36~44…88~100kPa

 
公司概况   新闻资讯   产品中心   营销市场   服务中心   联系我们
                     
公司简介
董事长致辞
企业宗旨
组织机构
公司荣誉
厂区概况
  企业新闻
公司文艺角
行业动态
技术文章
  调节阀
蝶阀
电磁阀
球阀
放料阀
刀型闸阀
自力式压力调节阀
衬氟及塑料阀门
工艺阀门
执行机构
  营销市场
营销网络
  服务中心
服务承诺
  联系我们
留言中心
                     
Copyright (c) 2016 上海大禹自控阀门有限公司 沪ICP备15052615号 技术支持:控制阀网